
Localisation
Paris XVI
Programme
Réhabilitation complète d’un appartement Haussmannien
Lieu
Paris XVI
Maîtrise d’ouvrage
Privée
Maitrise d’oeuvre
Asphalt
Aubert Structures
Camille Gharbi (photographies)
Coût
75 000 €HT
Superficie (SDP)
60 m²
Calendrier
Livraison mars 2019
Paris XVI
Programme
Réhabilitation complète d’un appartement Haussmannien
Lieu
Paris XVI
Maîtrise d’ouvrage
Privée
Maitrise d’oeuvre
Asphalt
Aubert Structures
Camille Gharbi (photographies)
Coût
75 000 €HT
Superficie (SDP)
60 m²
Calendrier
Livraison mars 2019
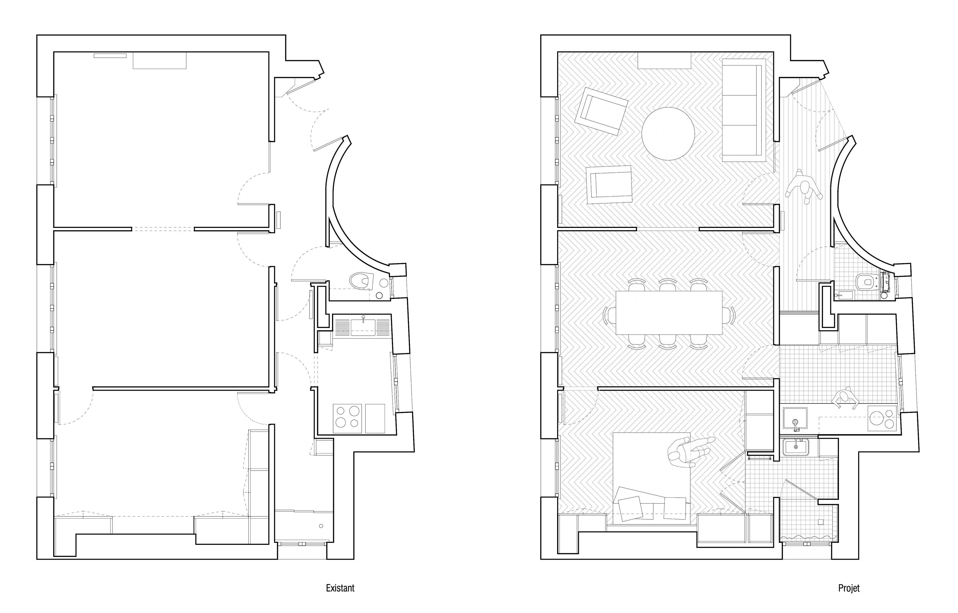
L’objectif de la réhabilitation de cet appartement s’est rapidement orientée autour de deux objectifs :
- Affirmer l’idée d’un vrai deux pièces, permettant de redonner une dimension adaptée à la cuisine
- Valoriser les orientations et apports de lumière multiples de l’appartement, en particulier l’impressionnante vue dégagée sur les toits de Paris perceptible depuis la fenêtre de la salle d’eau.
Un travail en plan, un jeu de transparences et l’utilisation de matériaux sobres et qualitatifs ont permis de dégager des volumes clairs et baignés de lumière tout au long de la journée.
- Affirmer l’idée d’un vrai deux pièces, permettant de redonner une dimension adaptée à la cuisine
- Valoriser les orientations et apports de lumière multiples de l’appartement, en particulier l’impressionnante vue dégagée sur les toits de Paris perceptible depuis la fenêtre de la salle d’eau.
Un travail en plan, un jeu de transparences et l’utilisation de matériaux sobres et qualitatifs ont permis de dégager des volumes clairs et baignés de lumière tout au long de la journée.
