
Localisation
Les Fossés-à-la-Vache (61)
Programme
Construction d’une maison individuelle et d’un atelier
en ossature bois
Maîtrise d’ouvrage
Privée
Maîtrise d’œuvre
Asphalt (mandataire)
Aubert Structure
Albdo
Philippe Billard (photographie)
Coût/Surface
280k€HT / 150m²
Calendrier
Livré en 2020
Mission
Complète
Démarche environnementale
Structure en ossature bois, isolants biosourcés, artisans et matériaux locaux (bois, tuiles de terre cuite)
Les Fossés-à-la-Vache (61)
Programme
Construction d’une maison individuelle et d’un atelier
en ossature bois
Maîtrise d’ouvrage
Privée
Maîtrise d’œuvre
Asphalt (mandataire)
Aubert Structure
Albdo
Philippe Billard (photographie)
Coût/Surface
280k€HT / 150m²
Calendrier
Livré en 2020
Mission
Complète
Démarche environnementale
Structure en ossature bois, isolants biosourcés, artisans et matériaux locaux (bois, tuiles de terre cuite)
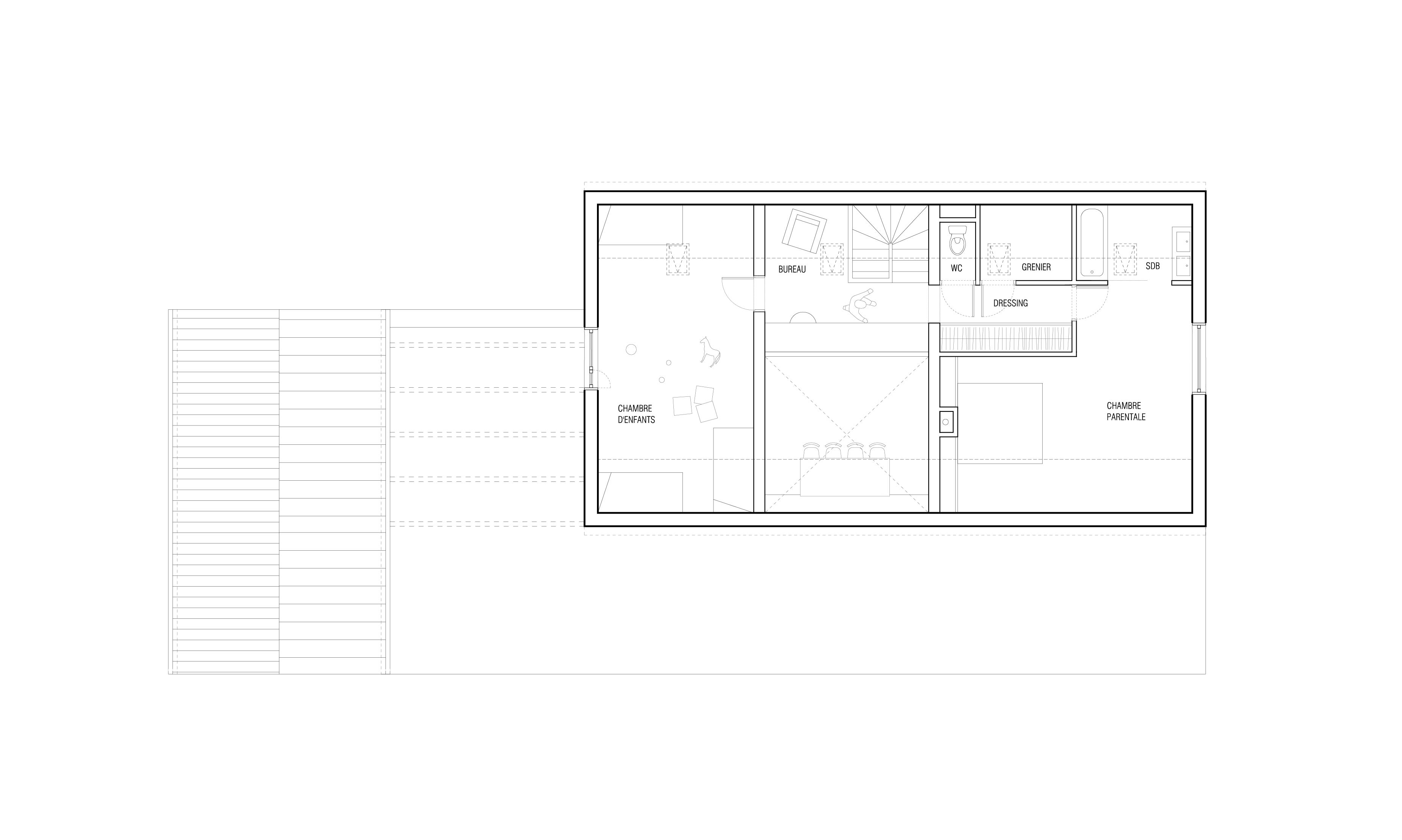
C’est sur une parcelle en friche, en face d’un pré aux vaches que les clients ont choisi de construire leur maison secondaire. Le terrain se situe à la pointe sud du hameau bien nommé des Fossés-à-la-vache comptant une dizaine de maisons. Situé au sein du Parc Naturel Régional du Perche, a proximité de la forêt domaniale de Réno-Valdieu, il s’insère dans un patrimoine architectural et paysager remarquables dont le projet se saisit. Une maison et un atelier en ossature bois, (dont la disposition permet de créer une terrasse généreuse au Sud, à l’abri des vents d’Ouest et de la vue depuis la route), s’intègrent à l’important dévers Nord-est / Sud-ouest du terrain (environ 7 m) en s’implantant sur différents niveaux. La maison s’organise sur deux plateaux, articulés autour d’une bande épaisse concentrant rangements, stockages et réseaux. Pour s’implanter de manière délicate dans ce hameau et son architecture traditionnelle marquée, le projet prend pour fondement les éléments significatifs de la longère traditionnelle : largeur inférieure à 7.50 m, toiture à double pente à 45°, tuiles plates en terre cuite. Un bardage à claire-voie en douglas teinté dans la masse, de larges ouvertures vers le paysage environnant et un travail précis de composition et de calepinage permettent de donner un caractère contemporain à l’ensemble.
