
Localisation
Le Moulin de la Baine, Chaniers (17)
Programme
Réhabiliotation et extesion (Bepos) d'une maison traditionelle charentaise
Maîtrise d’ouvrage
Privée
Maîtrise d’œuvre
Asphalt (mandataire)
Aubert Structures
ITF
Coût/Surface
320 000€ HT / 150 m²
Calendrier
Livré en décembre 2020
Mission
Complète
Démarche environnementale
BEPOS (pompe à chaleur, panneaux photovoltaïque), matériaux locaux
Le Moulin de la Baine, Chaniers (17)
Programme
Réhabiliotation et extesion (Bepos) d'une maison traditionelle charentaise
Maîtrise d’ouvrage
Privée
Maîtrise d’œuvre
Asphalt (mandataire)
Aubert Structures
ITF
Coût/Surface
320 000€ HT / 150 m²
Calendrier
Livré en décembre 2020
Mission
Complète
Démarche environnementale
BEPOS (pompe à chaleur, panneaux photovoltaïque), matériaux locaux
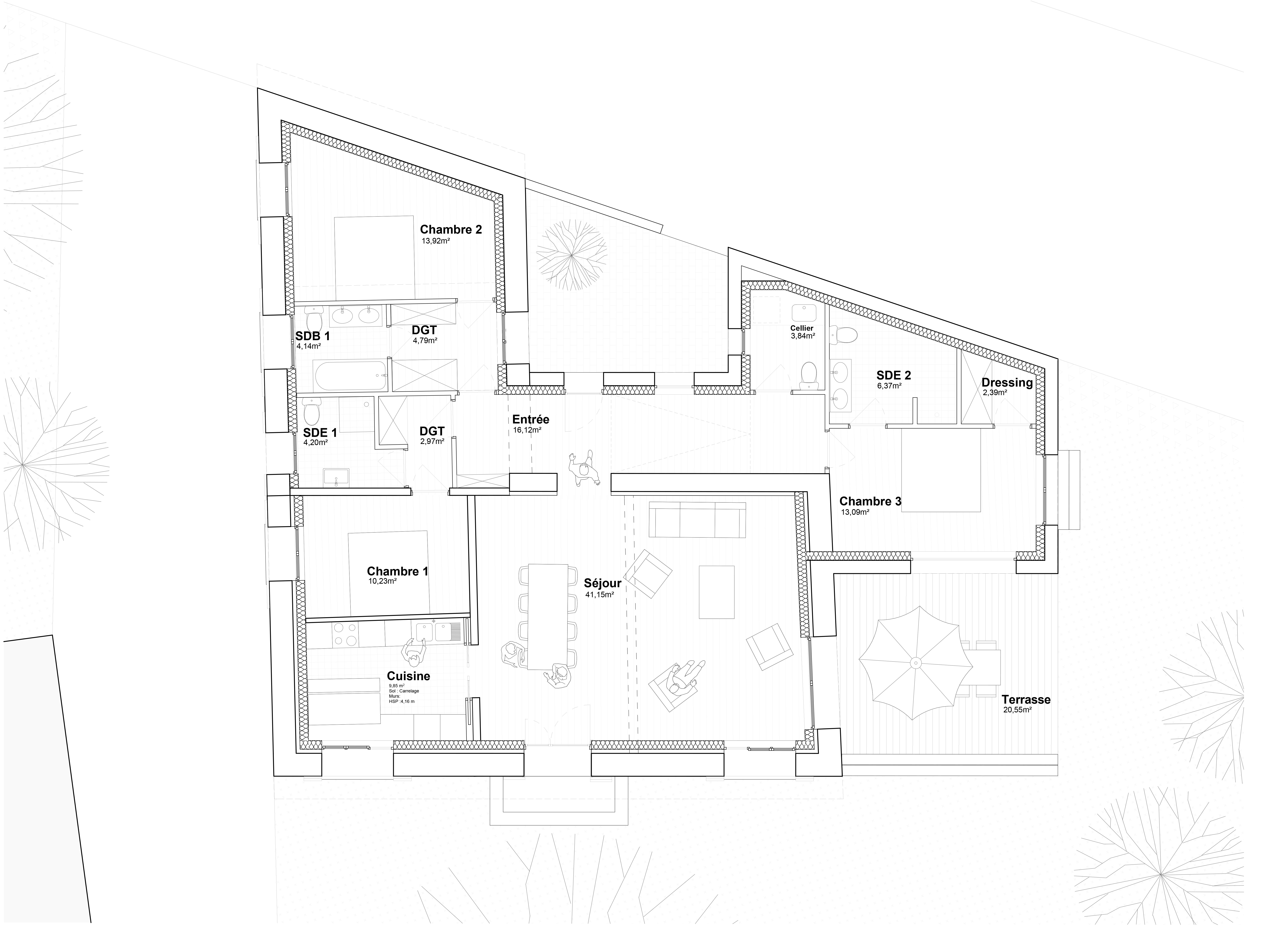
Le terrain d’implantation comprend deux maisons en pierre réunissant chaque été une famille nombreuse. Il descend en pente douce vers la Charente, à proximité du Moulin de la Baine. L’objectif de ce projet est non seulement de réaménager l’espace, pour le moment spartiate, de la plus petite des deux maisons (surnommée «la Ruine»), mais aussi de pouvoir continuer à réunir la famille pour les années et les générations à venir. Il est donc important de considérer les évolutions: mise en location, transformation en résidence principale indépendante, facilité d’accès pour les personnes âgées.... à ce souhait s’ajoute celui d’affirmer une efficacité thermique et énergétique la plus importante possible, en cohérence avec le respect de l’écriture traditionnelle existante. L’extension vient compléter de manière délicate la figure formée par la maison existante, en volume et en toiture. Sur l’extension, la visibilité des arrêtes, permises par la mise en œuvre de chéneaux intégrés, ainsi que l’emploi d’un béton teinté en façade permettent de créer un dialogue subtil entre l’existant en moellons traditionnels de pays avec débords de toiture et gouttière saillante, et une architecture plus épurée.
